
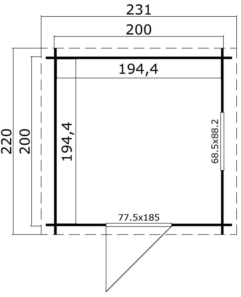
Blokhut - Tuinhuis Chappo | 28 mm | vuren onbehandeld
Meeuwen-Gruitrode, België
€ 2.259